2011 | Einfamilienhaus

Haus 18

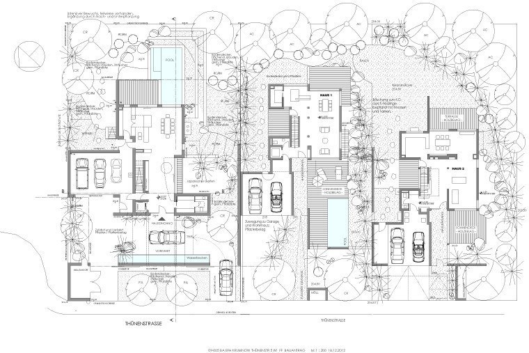
Projektbeschreibung

Einfamilienhaus Dr. Krumnow

In der Nähe des Neroberges sind drei Villen entstanden. Um heute moderne Villen zu bauen, bedarf es einer einfühlsamen Einfügung ohne Nachahmung; dadurch entstehen Spielräume. Bei den Villen sind die Proportionen sowie geschlossene und offene Flächen sorgsam ausbalanciert.

Die Größe der Kuben sowie ihre Stellung interpretieren die umgebende Bebauung, wobei die Gestaltung eigenständig ist: Im Sinne einer lebendigen Geschichte haben wir ein Muster unserer Zeit in den bestehenden Kontext gewoben.

Project description

Three villas were built near the Neroberg. In order to build modern villas today, the construction requires an insightful insertion of the villa without any forgery or imitation. Through this carfeully planned out process, room is created to use our own ideas and inventions in the creation of the villa. In villas, the proportions as well as the closed off and open spaces are carefully balanced.

The size of the cubes as well as their positioning interpret the surrounding development, but the structure remains independent from the others. In the sense of a living history we wove a design from our era into the existing context.